Bear Lake Abode Home Resort
DETAILS
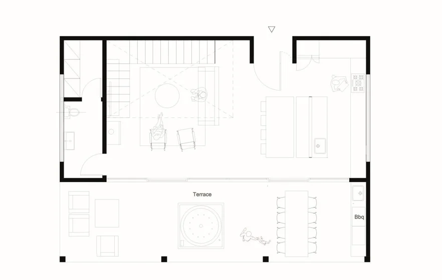
The Bear Lake Abode Home Resort is thoughtfully designed to harmonize with its natural surroundings—minimizing environmental impact while enhancing guest comfort. The development prioritizes preservation, with the majority of existing trees left undisturbed to maintain privacy, support native ecosystems, and protect the property’s organic character. This approach ensures a serene, authentic experience that reflects the natural beauty of the Bear Lake region.
