Grand Avenue Multifamily: Breathing New Life into a Detroit Landmark
DETAILS
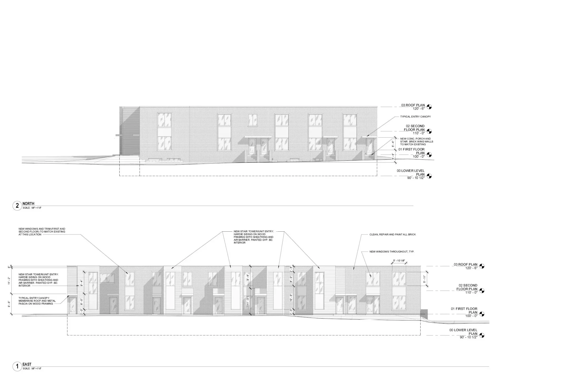
Located in the heart of the city, the Grand Avenue Multifamily Project is a strategic commercial-to-residential conversion aligned with Detroit’s broader revitalization efforts. This transformation reimagines an underutilized structure as a vibrant multi-unit community, meeting the rising demand for high-quality, affordable housing.
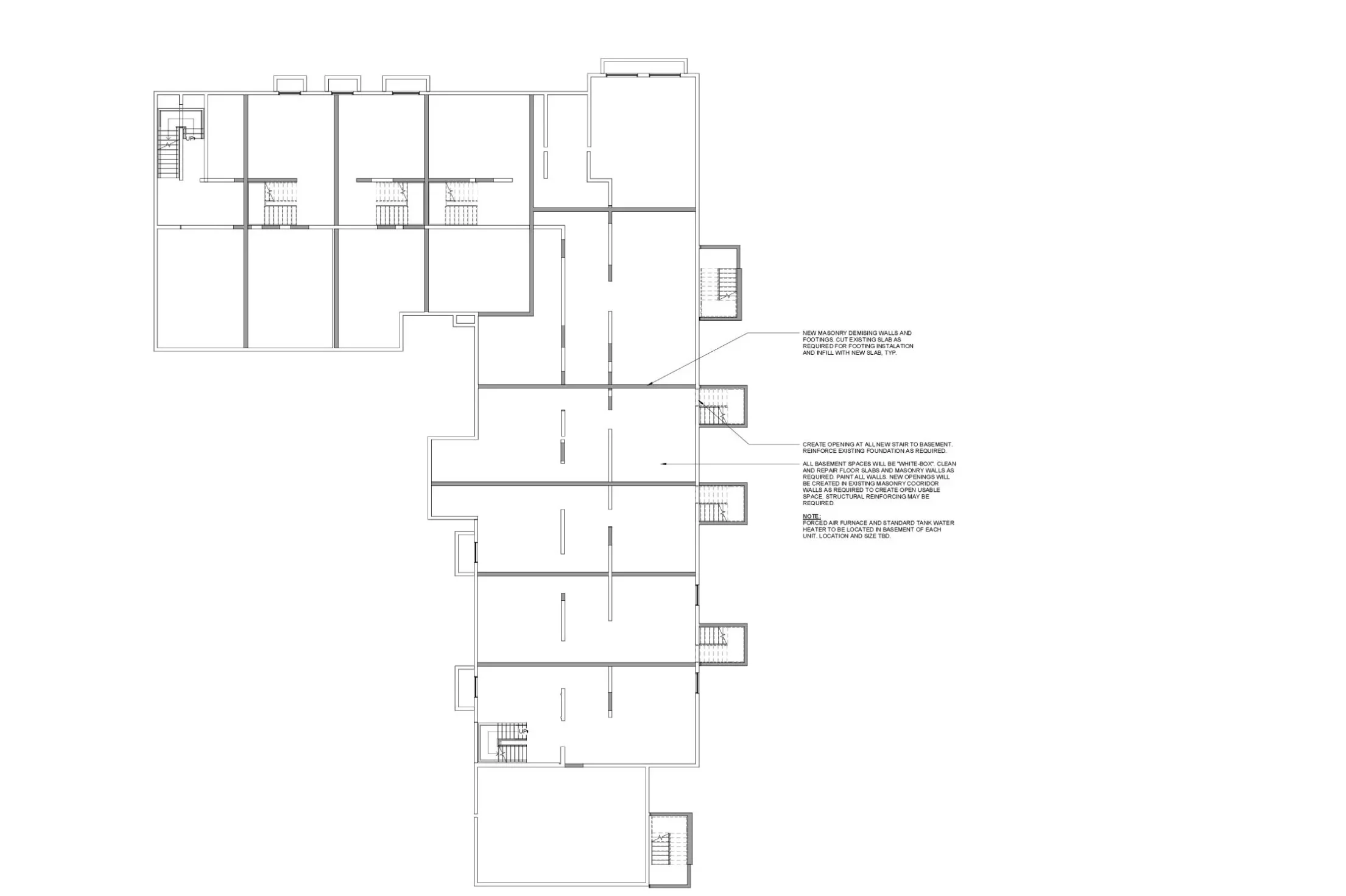
In line with KH Property Group’s commitment to preservation, the project will retain the building’s historic character and all original exterior architectural elements—honoring its legacy while redefining its purpose. With a focus on modern interiors, energy efficiency, and long-term durability, the development will enhance the surrounding neighborhood and provide professionally managed, accessible housing for Detroit’s diverse population.
This redevelopment reflects KH Property Groups’ broader mission: to drive sustainable urban growth, elevate neighborhoods through thoughtful design, and deliver long-term value in high-opportunity markets.
